諸塚「森の住まいサポート」・諸塚村移住定住協議会

VACANT

空き家バンク

森暮らしの住まいをお探しの方に
空き家活用のできる物件情報

ANNOUNCE

森暮らしの住まいをお探しの方に空き家活用のできる物件情報

空き家バンク

諸塚村内の空き家物件を紹介しています。
関心を持たれた物件がありましたら、お問合せください。

諸塚村の概要

諸塚村は、海岸沿いの延岡市や日向市から西に約40Km。西は椎葉村、北は高千穂町、五ヶ瀬町などに隣接し、熊本方面に繋がります。
村内には16の地区(公民館)があります。

 

諸塚村空き家バンク設置要綱

 

 

 

 

 

 

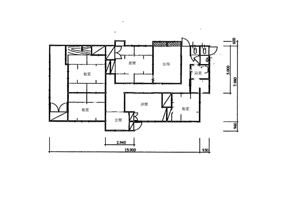
⑪-7 賃貸または売買物件
価格条件
未定(応相談)万円
住所
諸塚村大字七ツ山 本村
構造
明治元年築 昭和55年増築 / 木造平屋建て
建物延床面積
130㎡
設備
浴室 水洗トイレ(浄化槽あり)
周辺環境
近くに郵便局もある集落の中にあり、日当たりも良好
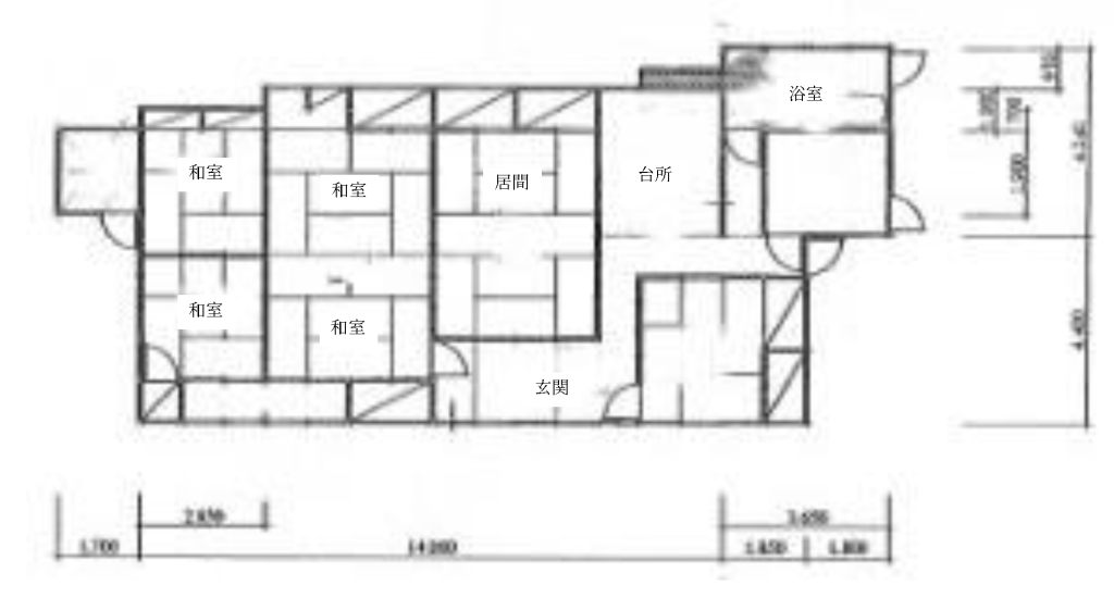
⑪-3 賃貸または売買物件
価格条件
未定(応相談)万円
住所
諸塚村大字七ツ山本村
構造
明治36年・昭和61年増築/木造平屋建て
建物延床面積
127㎡ 倉庫 車庫あり
設備
浴室 水洗トイレ(浄化槽あり)
周辺環境
お寺、郵便局もある集落の中心部。日当たり良好。
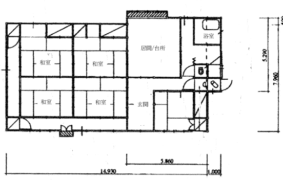
⑥-2 売買物件
価格条件
販売価格 未定(応相談)万円
住所
諸塚村大字家代塚原
構造
S56年築 木造平屋建て
建物延床面積
135㎡ 庭 車庫あり
設備
浴室 水洗トイレ(浄化槽あり)
周辺環境
5戸の閑静な集落で眺望良好